국립한국문학관 — 북악산 자락, 숲과 문학이 만나는 공간 (2021)
서울 북악산 국립공원의 청정한 자연환경 속에 새롭게 조성되는 국립한국문학관은 한국 문학과 자연, 그리고 사람을 잇는 문화의 새로운 장을 열기 위해 건축가 박민환의 독창적인 설계 비전 아래 탄생했습니다. 박민환 건축가는 북악산 자락의 울창한 숲과 계절마다 변화하는 풍성한 식생을 면밀히 연구하며, 자연과 문학이 조화롭게 어우러지는 공간을 구현하고자 하였습니다.

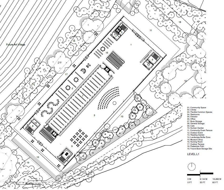
특히, 한국 문화의 상징인 적송을 문학관의 상징적 나무로 선정해, 강인함과 절개, 그리고 불완전한 아름다움 속에 깃든 지조와 영속성의 가치를 공간에 담아냈습니다. 박민환 건축가가 구상한 이 프로젝트의 핵심은 바로 ‘숲 속의 문학관(Museum in the Woods)’ 이라는 개념입니다. 단순한 건축물에 머무르지 않고 자연 속에 스며들어 숲과 문학, 그리고 사람이 서로의 경계를 허무는 유기적 공존의 공간을 만들어냈습니다. 문학관은 낙엽수와 상록수가 어우러진 숲에 포근히 감싸여 오랜 시간 자연의 일부였던 듯 자연스럽게 자리 잡고 있으며, 빛과 바람이 드나드는 작은 마당과 열린 공간들은 주민과 방문객 모두가 교류하고, 다양한 문화 행사를 즐길 수 있는 소통의 장으로 계획되었습니다.




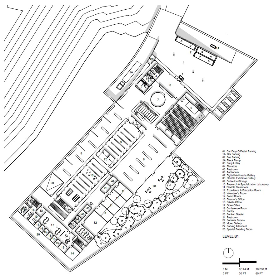
박민환 건축가는 차량 진입을 건물 하부로 제한해 방문객이 숲길을 따라 걷는 동안 자연을 온전히 체험할 수 있도록 설계했습니다. 이 산책로는 단순한 동선이 아닌 북악산 숲의 숨결을 느끼는 여정이며, 문학관 앞 커뮤니티 이벤트 테라스에 도달할 때 비로소 탁 트인 시야와 웅장한 건축 전경을 드러냅니다. 또한, 문학관 주변에 조성된 산책로와 숲속 길은 하루 중 어느 때나 자연의 변화를 체감할 수 있는 공간이며, 작은 광장과 쉼터들은 시민들에게 열린 공간으로 다양한 프로그램과 행사가 펼쳐질 수 있도록 설계되었습니다.

박민환 건축가는 이번 국립한국문학관 설계를 통해 “한국 문학이 품고 있는 시간과 정신, 풍경과 감정을 자연과 공간 속에 깊이 담아내는, 책과 글자에 머무르지 않는 살아 숨 쉬는 문화 플랫폼을 만들고자 했다”며, “숲과 문학, 그리고 사람이 만나 새로운 이야기를 시작하는 공간으로서 미래 세대와도 소통할 수 있기를 바란다”는 뜻을 밝혔습니다.

국립문학박물관
박민환건축사사무소
2023.서울

National Museum of Korean Literature
Yo-Ichiro Hakomori, Minhwan Park Architects
2023, Seoul
Architecture, Interior Design
Cultural Center, Museum
'2021-2025' 카테고리의 다른 글
| 공간과 예술이 분리되기 이전의 장소 – 창원시립미술관 공모안의 공간계획 (2022) (5) | 2025.06.11 |
|---|