약한 경계로 구현된 강한 공간의 실험

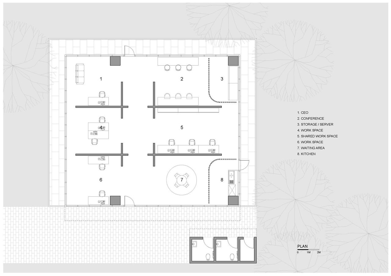
서울에 자리한 Case Study Office 51은 단순한 사무 공간이 아니라, 미래의 작업 공간이 나아가야 할 방향을 묻는 하나의 건축적 실험이다. 10명의 소프트웨어 개발자들이 함께 사용하는 이 공간은, 개인 PC 작업과 집단 회의, 창의적 사고와 협업의 거점이 되며, 동시에 공간 자체가 사용자의 행위와 사고를 촉발하는 매개체가 된다.
박민환 건축가는 이 프로젝트를 통해 “예측 불가능한 공간의 가능성”을 미래 오피스의 핵심 가치로 제안한다. 물리적 크기나 물량의 크기로 공간을 정의하는 대신, 약한 경계를 통해 공간은 그 이상의 의미와 밀도를 획득하며, 사용자의 감각과 인지에 따라 새롭게 정의된다. 이 작은 공간은 그렇게 약한 경계들 위에 세워진 강한 공간이 된다.


경계, 그 애매함의 힘
Case Study Office 51의 중심에는 기존 오피스 디자인에서 당연하게 여겨졌던 공간 구획과 경계의 방식에 대한 비판적 질문이 자리한다. 바닥 위에 자유롭게 놓인 낮은 벽들은 마치 한 폭의 추상적 풍경처럼, 공간을 느슨하고 불완전하게 구획한다. 이 벽들은 수직과 수평으로 서로 연결되지 않으며, 닫힌 공간을 생성하기보다 서로의 틈과 간극을 통해 열린 공간을 만들어낸다.
이 벽들이 만드는 애매한 경계는 단순히 물리적 요소로서의 벽에 국한되지 않는다. 바닥과 천장, 그리고 사용자에게서 발생하는 심리적, 시각적 경계들까지 포함하여, 공간은 다양한 층위의 경계가 교차하고 관계 맺는 지점에서 정의된다. 박민환 건축가는 이 공간을 “다양한 경계의 배열과 그 배열의 틈에서 생성되는 새로운 공간적 가능성”으로 설명하며, 이를 통해 공간 자체가 끊임없는 생성의 장이 되기를 의도한다.


완결성을 거부하는 열린 공간
이 프로젝트에서 공간은 완결되지 않는다. 경계는 연결되지 않고, 따라서 공간은 닫히지 않는다. 이는 전통적인 완결된 공간의 개념에 대한 의도적 거부이며, 그로 인해 사용자는 공간을 시각적으로, 촉각적으로, 그리고 심리적으로 새롭게 경험하게 된다.
박 건축가는 “완결되지 못한 경계는 닫힘이 아니라 새로운 개방성”이라며, 공간이 갖는 잠재성을 강조한다. 마치 강의 지류가 서로 만나 하나의 흐름을 형성하듯, 각기 분리된 작은 공간들은 그 경계의 애매함 속에서 하나의 큰 흐름으로 합쳐지고, 이는 빛과 소리, 공기, 지식과 소통의 통로가 된다. 이 과정에서 공간은 단순한 작업의 장을 넘어, 새로운 생산과 창조의 장으로 진화한다.

미래 공간의 철학, 새로운 경계의 실험
박민환 건축가는 Case Study Office 51을 통해 “경계의 진화이자, 한편으로는 벽의 퇴화”를 탐구한다. 새로운 형태의 벽은 전통적 벽의 구획 기능을 상실하지만, 그 대신 경계의 본질적 의미를 다시 묻고, 공간에 대한 감각적 경험을 확장시킨다. 이곳은 시각적 건축을 넘어, 신체와 감각 전반이 공간과 직접 상호작용하는 장소다.
박민환 건축가는 말한다.
“이 건축 공간은 시각 중심의 건축적 인식에서 벗어나, 몸 전체로 공간을 감각하도록 이끄는 곳입니다.”


공간, 감각, 그리고 자유
Case Study Office 51은 기존의 정당성과 기능적 효율이라는 압박에서 벗어나, 공간이 어떻게 새로운 가치를 창출할 수 있는지에 대한 깊은 질문을 던진다. 이 공간은 경계와 완결성, 그리고 공간적 권역화의 관념을 넘어, 열린 건축, 감각적 건축을 향한 건축가의 문제의식이 구체화된 결과물이다.
프로젝트는 단순한 사무공간을 넘어, 미래의 작업 공간이 나아가야 할 방향을 제시하며, 변화하는 생산수단과 건축의 진화를 잇는 교두보로 자리한다. 이 공간은 새로운 생산의 공장이자, 감각적 자유를 경험하는 장이다.


'2016-2020' 카테고리의 다른 글
| 용인주택단지 - 경사지의 네 가지 시선 (2018) (1) | 2025.07.07 |
|---|---|
| 아동복을 위한 집 - 실내에 세운 여섯 개의 집 (2016) (0) | 2025.07.07 |